Listing Tools

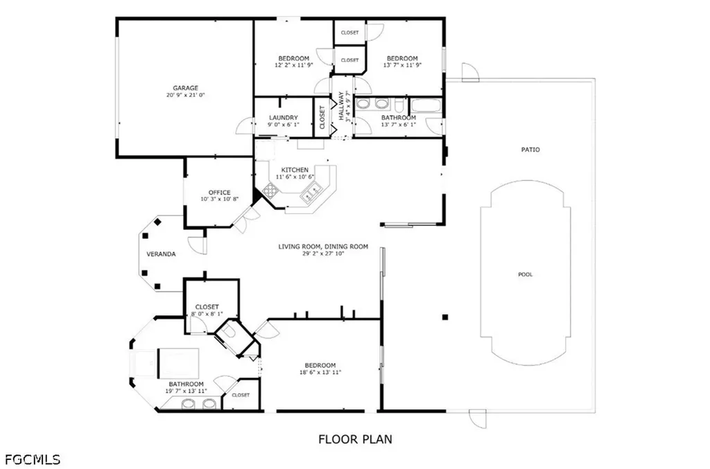
Heated Pool Home | Prime SW Cape Coral | No HOA | Move-In Ready. Live the Florida lifestyle the right way. This 3-bedroom + den, 2-bath HEATED POOL home in highly desirable SW Cape Coral checks every box. Bright, open layout with high ceilings and tons of natural light. Multiple sliders from the living room, dining area, and primary suite open directly to the lanai - seamless indoor-outdoor living and ideal for entertaining. TONS OF STORAGE! The primary suite is a private retreat with two walk-in closets, dual vanities, soaking tub, walk-around shower, and direct pool access. Split floor plan offers privacy for guests, and every bedroom includes a walk-in closet. The guest bath features dual sinks and convenient pool access. Outside, enjoy an oversized under-truss lanai with mounted TV, sparkling heated pool, and outdoor shower - designed for year-round enjoyment. Major upgrades already done: NEW ROOF (2025), A/C (2022), Impact windows (2023), New pool cage & vinyl fence (2023), Electric pool heater (2025), Fresh interior & exterior paint (2025), Pool resurfaced (2022), Updated lighting throughout. Located in a golf-cart-friendly neighborhood close to parks, shopping, dining, and top-rated schools - you can even walk or cart the kids to school. NEVER FLOODED. High and dry.

Property Details

Interior Features

Exterior Features

Utilities and Appliances

Community

Map Location

Listed by Kara Pleasant of Weichert Realtors Agency ONE

Based on information submitted to Gulf Coast as of March 6, 2026 . All data is obtained from various sources and has not been, and will not be, verified by broker or Gulf Coast.  All information should be independently reviewed and verified for accuracy. Properties may or may not be listed by the office/agent presenting the information. NOTICE: Many homes contain recording devices, and buyers should be aware they may be recorded during a showing.

Hi there! How can we help you?

Contact us using the form below or give us a call.

Send Us A Message:

I agree to be contacted by Cynthia Crawford Holt via call, email, and text for real estate services. To opt out, you can reply ‘stop’ at any time or reply ‘help’ for assistance. You can also click the unsubscribe link in the emails. Message and data rates may apply. Message frequency may vary. Privacy Policy.

Do not fill in this field:

This site is protected by reCAPTCHA and the Google Privacy Policy and Terms of Service apply.

Hi there! How can we help you?

Contact us using the form below or give us a call.

Send Us A Message:

Do not fill in this field:

This site is protected by reCAPTCHA and the Google Privacy Policy and Terms of Service apply.

Hi there! How can we help you?

Contact us using the form below or give us a call.

Send Us A Message:

Do not fill in this field:

This site is protected by reCAPTCHA and the Google Privacy Policy and Terms of Service apply.

Do not fill in this field:

This site is protected by reCAPTCHA and the Google Privacy Policy and Terms of Service apply.

Do not fill in this field:

This site is protected by reCAPTCHA and the Google Privacy Policy and Terms of Service apply.

Do not fill in this field:

This site is protected by reCAPTCHA and the Google Privacy Policy and Terms of Service apply.

$

Do not fill in this field:

This site is protected by reCAPTCHA and the Google Privacy Policy and Terms of Service apply.